- kocioł dwupaliwowy o uniwersalnej konstrukcji: ręczny załadunek (zgazowanie drewna); automatyczne dostarczanie paliwa do komory paleniskowej (palnik peletowy)
- uniezależnienie od jednego rodzaju paliwa w sytuacji jego braku; wahań cenowych; awarii czy braku prądu
- emisja pyłów <=20mg/m3 (urządzenie spełnia najbardziej rygorystyczne wymagania dotyczące niskiej emisji szkodliwych substancji, zwłaszcza pyłów)
- EcoDesign, Klasa 5 (najwyższa) wg PN-EN 303-5 + A1:2023-05, Klasa efektywności energetycznej A+
- wysoka sprawność dzięki rozbudowanemu wymiennikowi z trójciągowym układem komór spalinowych
- odkręcany czopuch (ułatwiony transport do kotłowni)
- możliwość montażu w dowolnym momencie wentylatora wyciągowego (wyposażenie dodatkowe) bezpośrednio w korpusie kotła
- klapka „krótkiego” obiegu ułatwiająca proces rozpalania i uzupełniania paliwa
- prawe/lewe drzwiczki (uniwersalna konstrukcja umożlwiająca w dowolnym momencie zmianę kierunku otwierania drzwiczek)
- pojemna, głęboka komora (umożliwiająca załadunek polan drewna o długości do 50cm)
- komora wyposażona w palnik ceramiczny celem zgazowania paliwa i utrzymania odpowiednich warunków spalania drewna kawałkowego
- palnik peletowy SAS miniGREEN - autorska konstrukcja wyposażona w ruchomą płytę paleniska (w standardzie)
- na wyposażeniu kotła sterownik obsługujący: 3pompy, 1zawór mieszający, sterowanie pogodowe, współpraca z buforem ciepła, podgląd i zmiana parametrów poprzez dodatkowy moduł internetowy (w opcji)
- kompaktowy zasobnik opału o różnych pojemnościach (zaprojektowany do mocy kotła)
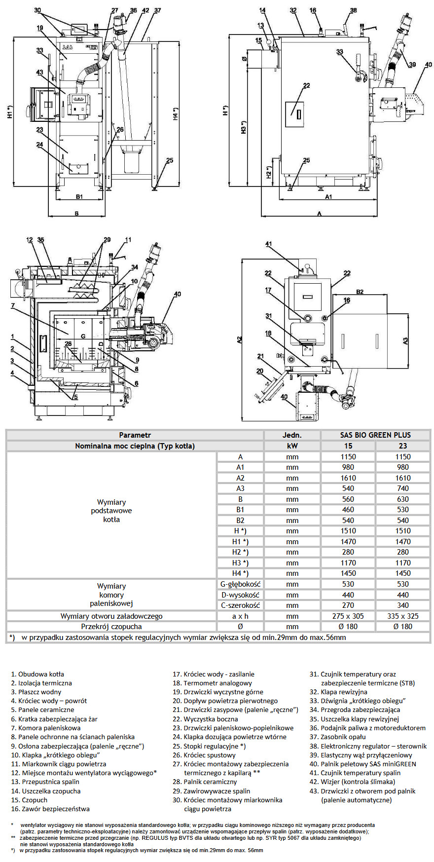
Dane techniczne

Wymiary i budowa




Bestsellery











