Bezpieczne zakupy
- Różne formy płatności
- Zaufane opinie Ceneo i Opineo
- Gwarantowany zwrot pieniędzy
- 14 dni na zwrot towaru
- Szyfrowane dane i transakcje
- Ubezpieczone przesyłki
Waluty
MPM WOOD PLUS KOCIOŁ ZASYPOWY 5 KLASY ZGAZOWUJĄCY DREWNO Z SYSTEMEM ODDYMIANIA KOMORY DO PRACY W UKŁADZIE ZAMKNIĘTYM 68 KW
Potwierdź dostępność przed zakupem
Opis
MPM WOOD PLUS KOCIOŁ ZASYPOWY 5 KLASY ZGAZOWUJĄCY DREWNO Z SYSTEMEM ODDYMIANIA KOMORY DO PRACY W UKŁADZIE ZAMKNIĘTYM 68 KW
Kocioł MPM Wood Plus jest kolejnym wcieleniem kotła zgazowującego paliwo stałe - drewno. Następna generacja naszej (polskiej) produkcji z zastosowanym systemem oddymiania komory załadowczej, który zapobiega zadymianiu kotłowni podczas dokładania opału. W ofercie posiadamy kocioł,o najmniejszej mocy na rynku - 6 kW, a także 10kW, 14kW, 18kW, 26 kW, 34kW oraz 68kW. Kocioł Wood Plus dostępny również w wersji S.Z.!*
*przystosowany do pracy w Systemie Zamkniętym, w tej wersji kocioł posiada dodatkowe zabezpieczenie termiczne, w postaci zaworu DBV-1.

Kocioł Wood Plus kwalifikuje się do programu "Czyste Powietrze". Dodatkowo, spełnia warunek emisji pyłu PM ≤ 20mg/m3 i można uzyskać na niego wyższy poziom dofinansowania.

Czyste spalanie = Czyste Powietrze
Ceramiczna komora spalania umożliwia praktycznie całkowite spalanie przy minimalnej emisji substancji szkodliwych, zwiększa sprawność oraz zmniejsza zużycie paliwa. Efektem jest mniejsza ilość popiołu i trudnych do usunięcia osadów. Dzięki temu rozwiązaniu obsługa kotła staje się prostsza i nie wymaga tak częstego czyszczenia.
Kanał oddymiający komorę załadowczą
Czy podczas dokładania opału do kotła wydobywa się dym? Mamy na to sposób! Kocioł MPM Wood Plus, wyposażony w automatyczny system oddymiający komorę załadowczą, który nie zaburza procesu spalania w kotle. Dodatkowo, dzięki temu rozwiązaniu dokładanie opału do kotła będzie bardziej komfortowe i bezpieczne.
Ekologia i ekonomia
Zastosowane rozwiązania i konstrukcja, chronione zgłoszeniem patentowym nr P.437844 oraz P.444656, przyczyniają się do dużych oszczędności paliwa, a także ochrony środowiska. Dzięki wykorzystanej technologii kocioł spełnia wymagania 5 klasy wg normy PN-EN 303-5:2021 oraz posiada certyfikat ekoprojektu.
Dane techniczne
| Parametr | Jednostka | Wartość | ||||||
| Moc kotła | kW | 6 | 10 | 14 | 18 | 26 | 34 | 68 |
| Powierzchnia grzewcza | m2 | 1.0 | 1.5 | 2.0 | 2.4 | 2.9 | 3.6 | 6.0 |
| Wysokość | mm | 805 | 940 | 1100 | 1100 | 1183 | 1200 | 1480 |
| Szerokość obudowy | mm | 410 | 480 | 480 | 550 | 600 | 710 | 735 |
| Szerokość całkowita | mm | 455 | 585 | 585 | 655 | 655 | 780 | 830 |
| Długość całkowita | mm | 1035 | 1070 | 1105 | 1145 | 1220 | 1250 | 1780 |
| Wymiary drzwi załadowczych | mm | 230 x 230 | 230 x 300 | 270 x 300 | 270 x 370 | 250 x 425 | 250 x 530 | 350 x 530 |
| Wymiary komory załadowczej | mm | 485x270 | 610x230 | 700x250 | 710x260 | 800x350 | 730x350 | 900x700 |
| Pojemność komory załadowczej | dm3 | ~ 30 | ~ 42 | ~ 52 | ~ 70 | ~ 120 | ~ 135 | ~330 |
| Wskazana temperatura robocza | °C | 60 - 90 | ||||||
| Wysokość do dolnej krawędzi czopucha | mm | 555 | 680 | 790 | 790 | 910 | 895 | 1115 |
| Pojemność wodna kotła | dm3 | 40 | 63 | 74 | 80 | 94 | 102 | 300 |
| Waga kotła | kg | 170 | 270 | 300 | 370 | 450 | 490 | 850 |
| Max. dop. ciśnienie robocze | bar | 3 | ||||||
| Max. temp. robocza | °C | 90 | ||||||
| Wymagany ciąg spalin | Pa | ~ 0,20 | ~ 0,20 | ~ 0,20 | ~ 0,20 | ~ 0,30 | ~0,35 | ~0,45 |
| Min. przekrój komina | mm | 160x160 | 180x180 | 180x180 | 180x180 | 180x180 | 180x180 | 180x180 |
| Wymiary czopucha | mm | Ø140 | Ø178 | Ø178 | Ø178 | Ø178 | Ø178 | Ø178 |
| Min. wysokość komina | m | 7 | 7 | 7 | 8 | 9/10 | 11 | 13 |
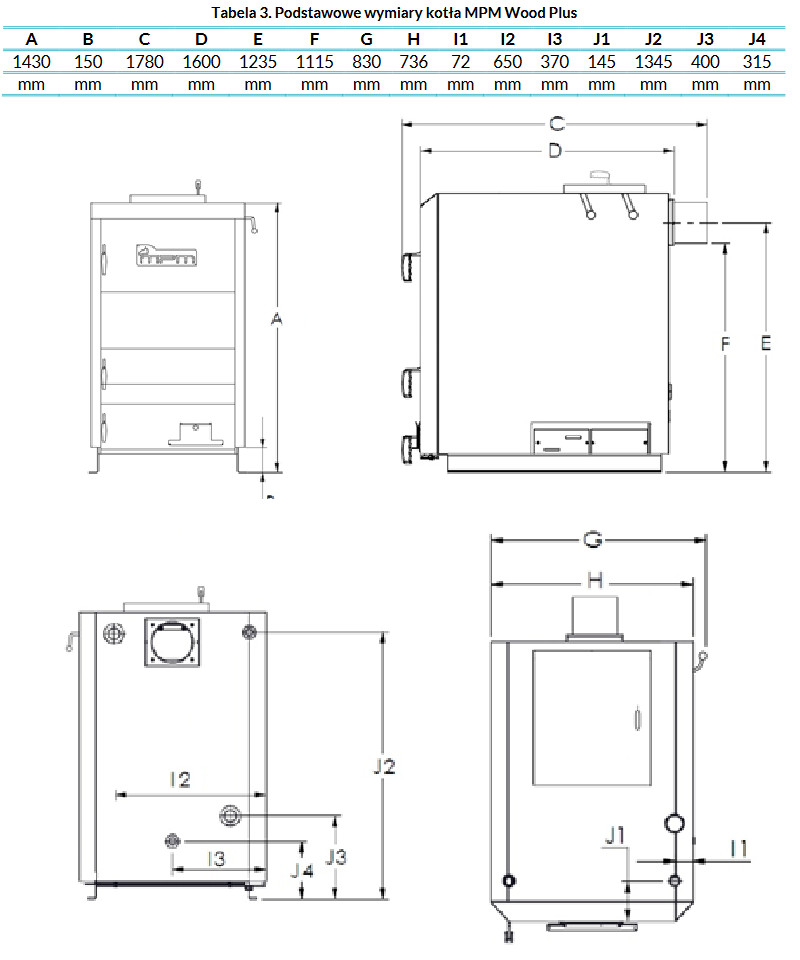
Wymiary

Dane techniczne
| Rodzaj kotła | zasypowy |
| Podstawowe Paliwo | Drewno |
| Klasa efektywności energetycznej | A+ |
| Wersja do układu zamkniętego | tak |
| Możliwość pracy w układzie zamknietym | tak |
| Umieszczenie czopucha | Do tyłu |
| Klasa | 5 - ECO DESIGN |
| Moc znamionowa (kW) | ponad 30 |
| Średnica otworu wylotowego (mm) | 178 |
| Zalecany przekrój komina (mm) | 180 |
| Minimalna wysokość komina (m) | 11 |
| Wymiary komory zasypowej [szer. x gł. x wys.] | 900x700 |
| Głębokość (mm) | 1701-1800 |
| Szerokość (mm) | 801-900 |
| Wysokość (mm) | 1301-1500 |
| Wymiary (wys. x szer. x głęb.) [mm] | 1480 x 830 x 1780 |
| Producent | MPM |
| Symbol producenta | Wood Plus 68 S.Z. |
| Gwarancja (lat) | 4 |












