Bezpieczne zakupy
- Różne formy płatności
- Zaufane opinie Ceneo i Opineo
- Gwarantowany zwrot pieniędzy
- 14 dni na zwrot towaru
- Szyfrowane dane i transakcje
- Ubezpieczone przesyłki
Waluty
METAL-FACH SEMAX BASIC KOCIOŁ ZGAZOWUJĄCY DREWNO 20 KW - CZOPUCH DO TYŁU
Potwierdź dostępność przed zakupem
Opis
METAL-FACH SEMAX BASIC KOCIOŁ ZGAZOWUJĄCY DREWNO 20 KW

- Dostępne moce - 15-40kW
- Paliwo - Drewno opałowe
- Czyste Powietrze - Zakwalifikowany
- Lista ZUM - Zarejestrowany
- Klasa energetyczna - A+
- Gwarancja - 5 lat rozszerzona*
Gwarancja 5 lat (rozszerzona)*: Gwarancja podstawowa 2 letnia, z możliwością rozszerzenia do 5 lat. Szczegółowe informacje na temat warunków gwarancji znajdują się w dokumentacji technicznej.
Ekologia i oszczędność

Komfort użytkowania
Komora zgazowania

Sterowanie
Kocioł zgazowujący drewno nie wymaga skomplikowanej automatyki, można go wyposażyć w prosty, intuicyjny system sterowania umożliwiający monitorowanie parametrów pracy. Mechaniczny termometr bimetaliczny zapewnia długą i niezawodną pracę pomiarową, a miarkownik ciągu dba o odpowiedni dopływ powietrza. Dzięki przemyślanym rozwiązaniom sterowanie kotłem jest proste, a proces spalania stabilny i bezpieczny.
Miarkownik ciągu

Dane techniczne



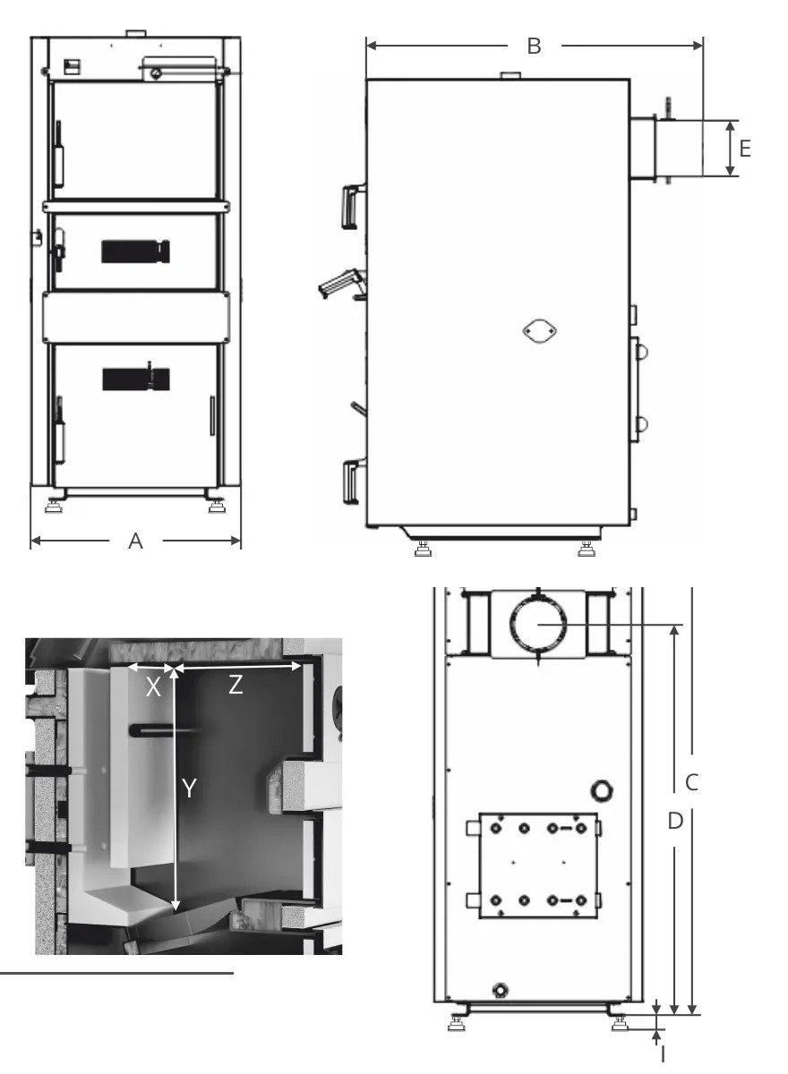
Wymiary


Pliki do pobrania:
Dane techniczne
| Rodzaj kotła | zasypowy |
| Podstawowe Paliwo | Drewno |
| Klasa efektywności energetycznej | A+ |
| Wymagany zbiornik akumulacyjny | tak |
| Umieszczenie czopucha | Do tyłu |
| Klasa | 5 - ECO DESIGN |
| Moc znamionowa (kW) | 16 - 20 |
| Średnica otworu wylotowego (mm) | 159 |
| Wymiary komory zasypowej [szer. x gł. x wys.] | 290 x 515 x 445 |
| Głębokość (mm) | 901-1100 |
| Szerokość (mm) | 501-600 |
| Wysokość (mm) | 1101-1300 |
| Wymiary (wys. x szer. x głęb.) [mm] | 1275 x 520 x 1070 |
| Grubość blachy wymiennika ciepła (mm) | 5 |
| Producent | Metal-Tech Technika Grzewcza |
| Symbol producenta | VSEMB20 |
| Gwarancja (lat) | 5 |
| Poprzednia klasa energetyczna | A+ |












