Bezpieczne zakupy
- Różne formy płatności
- Zaufane opinie Ceneo i Opineo
- Gwarantowany zwrot pieniędzy
- 14 dni na zwrot towaru
- Szyfrowane dane i transakcje
- Ubezpieczone przesyłki
Waluty
IZZIFAST 250S SZAFA HYDRAULICZNA DO WSPÓŁPRACY Z MONOBLOKAMI PANASONIC
Potwierdź dostępność przed zakupem
Opis
IZZIFAST 250S SZAFA HYDRAULICZNA DO WSPÓŁPRACY Z MONOBLOKAMI PANASONIC

IZZIFAST - KOMPLETNE SZAFY HYDRAULICZNE - PRZEGLAD TYPOSZEREGU

CAŁA KOTŁOWNIA W JEDNYM URZĄDZENIU
Szafy hydrauliczne iZZiFAST współpracujące z pompami ciepła powietrze-woda typu monoblok to urządzenia zawierające w swojej kompaktowej obudowie o powierzchni 0,4 m² wszystkie niezbędne elementy standardowej kotłowni wraz z zasobnikiem ciepła oraz armaturą hydrauliczną i sterującą niezbędną do prawidłowego i bezpiecznego funkcjonowania instalacji centralnego ogrzewania (CO) oraz ciepłej wody (CWU) w budynku.
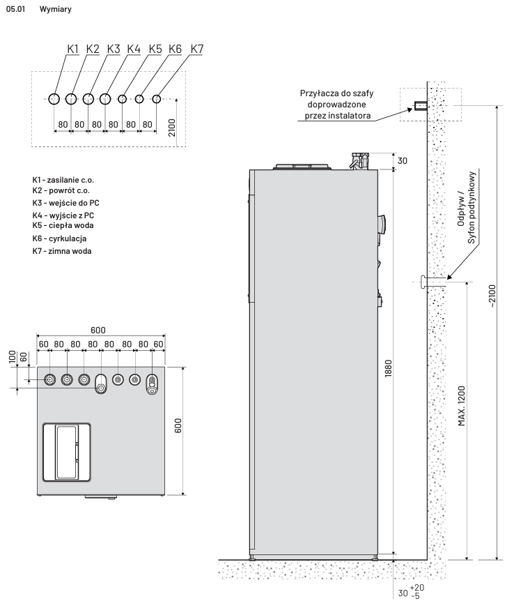
Do produkcji szafy hydraulicznej iZZiFAST użyte zostały najwyższej jakości materiały, a komponenty dostarczane są przez renomowanych producentów. Urządzenie ma również niską wagę oraz zajmuje niewiele miejsca – 60 x 60 cm. Dzięki autonomicznemu systemowi UPS braki zasilania nie stanowią już zagrożenia zamarznięcia układu, który podtrzymuje dodatnią temperaturę w jednostce zewnętrznej nawet do 48h. Zastosowanie filtra zmiękczającego wodę kotłową zapewnia ochronę przed szkodliwym działaniem osadzania się kamienia w instalacji grzewczej, co znacznie podnosi jej sprawność.
Korzyści dla użytkownika:
■ estetyczny wygląd i nowoczesny design;
■ kompaktowa budowa;
■ oszczędność powierzchni użytkowej – brak konieczności tworzenia klasycznej kotłowni;
■ kompatybilność modułów iZZiFAST z całym typoszeregiem pomp ciepła monoblok danego producenta;
■ gwarancja jakości i trwałości produktu ze względu na zastosowanie materiałów najwyższej klasy (stal nierdzewna 316L);
■ niższe koszty inwestycyjne w porównaniu do układów rozdzielnych;
■ bezobsługowa praca;
■ zaawansowane możliwości sterowania, również przez Wi-Fi;
Korzyści dla instalatora:
■ łatwy do wykonania montaż przez każdego wykwalifikowanego hydraulika;
■ brak konieczności posiadania uprawnień f-gazowych;
■ ograniczenie czasu kompleksowego montażu pompy ciepła do zaledwie kilku godzin;
■ brak konieczności stosowania roztworów płynów niezamarzających jako czynnika w obiegu grzewczym;
■ kompleksowe wyposażenie hydrauliczne modułu iZZiFAST;
■ dodatkowa skrzynka przyłączeniowa – możliwość podłączenia przewodów zasilających i komunikacyjnych bez ingerencji w automatykę zestawu sterującego.



Przykładowe schematy hydrauliczne :
















