Bezpieczne zakupy
- Różne formy płatności
- Zaufane opinie Ceneo i Opineo
- Gwarantowany zwrot pieniędzy
- 14 dni na zwrot towaru
- Szyfrowane dane i transakcje
- Ubezpieczone przesyłki
Waluty
GALMET MAXI WYMIENNIK C.W.U. Z DUŻĄ 3,6M2 WĘŻOWNICĄ SPIRALNĄ DO POMP CIEPŁA 300 L POLIURETAN SKAY WERSJA 2
na wyczerpaniu
Opis
GALMET MAXI WYMIENNIK C.W.U. Z DUŻĄ 3,6M2 WĘŻOWNICĄ SPIRALNĄ DO POMP CIEPŁA 300 L POLIURETAN SKAY WERSJA 2

Maxi znaczy do pomp ciepła
Wymiennik SGW(S) Maxi zapewnia optymalne wykorzystanie mocy pompy ciepła. Maksymalnie powiększona, podwójna wężownica spiralna umożliwia ogrzanie do 1000 litrów wody użytkowej.
Maxi znaczy wydajny
Wydajna, twarda izolacja gwarantuje komfort użytkowania ciepłej wody przez całą dobę. Zapewnia znikome straty ciepła i niskie koszty eksploatacji.
Maxi znaczy bezpieczeństwo
Długie i higieniczne użytkowanie wymiennika to zasługa najwyższej jakości emalii ceramicznej EXTRA GLASS® i zestawu anod. Anoda dolna i regularnie wymieniana anoda górna zabezpieczają wnętrze zbiornika i przedłużają jego trwałość. Stosowane opcjonalnie aktywne anody tytanowe działają bezobsługowo i nie wymagają serwisowania.
Dla wymienników o pojemności:
- do 250 litrów, polecana jest mała anoda tytanowa,
- od 300 do 500 litrów duża,
- od 720 do 1000 duża podwójna anoda tytanowa.
Maxi znaczy rozbudowa
Konstrukcja wymiennika c.w.u. Maxi umożliwia szybki i wygodny montaż. Przyłącza zlokalizowane z tyłu pozwalają na komfortowe użytkowanie. Z przodu instalowany jest tylko, opcjonalny komplet elektryczny GE. Lekka obudowa zewnętrzna, ze skayu, ułatwia transport wymiennika na miejsce inwestycji. Standardowym kolorem obudowy jest kolor szary, ale bezpłatnie można zamówić jeden z 4 kolorów dodatkowych.

Gwarancja
Najlepsze surowce, zaawansowana technologia produkcji i wykwalifikowana kadra gwarantują najwyższą jakość na każdym etapie produkcji. Pozwala to zaoferować użytkownikom wymiennika do pompy ciepła Maxi 60 miesięcy gwarancji (szczegóły w karcie gwarancyjnej).
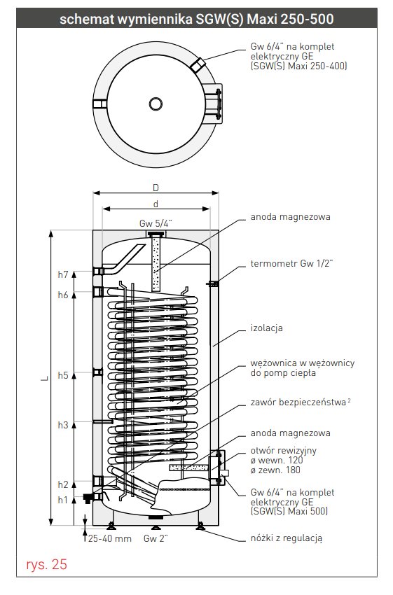
Schemat wymiennika c.w.u. do pomp ciepła Maxi pojemność: 250 - 500 litrów


Dane techniczne
| Typ | zasobnik z maksymalnie dużą wężownicą spiralną (wężownica w wężownicy) |
| Materiał wykonania | stal malowana proszkowo - emalia ceramiczna nakładana metodą na mokro - EXTRA GLASS® |
| Pojemność zasobnika cwu (L) | 300 |
| Pojemność magazynowa (L) | 290 |
| Klasa efektywności energetycznej podgrzewania wody | B |
| Rodzaj montażu | wolnostojący |
| Ilość wężownic (szt) | 1 |
| Materiał płaszcza obudowy | skay |
| Materiał płaszcza zbiornika | stal malowana proszkowo - emalia ceramiczna nakładana metodą na mokro - EXTRA GLASS® |
| Rodzaj ocieplenia | poliuretan |
| Grubość warstwy ocieplenia (mm) | 70 |
| Wbudowana anoda magnezowa | tak |
| Wysokość zasobnika (mm) | 1601 - 1700 |
| Długość zasobnika (mm) | 901 - 1000 |
| Szerokość zasobnika (mm) | 901 - 1000 |
| Średnica zasobnika (mm) | 601 - 700 |
| Możliwość podłączenia cyrkulacji | tak |
| Możliwość podłączenia grzałki | tak |
| Dedykowany do pomp ciepła | tak |
| Ciśnienie max. pracy (MPa) | 1 |
| Producent | Galmet |
| Gwarancja (lat) | 5 |












